Mehrfamilienhaus Ilsenburg
Details
Standort: Am Tiergarten, 38871 Ilsenburg
Projektart: Wohnungsbau, Mehrfamilienhaus
Realisation: 2020/2021
Bauherr: IWG GmbH
Leistungsphasen: HOAI 1-4
Grundstücksfläche: 1212 m²
Bauweise: Massivbauweise, Stahlbeton, Kalksandstein
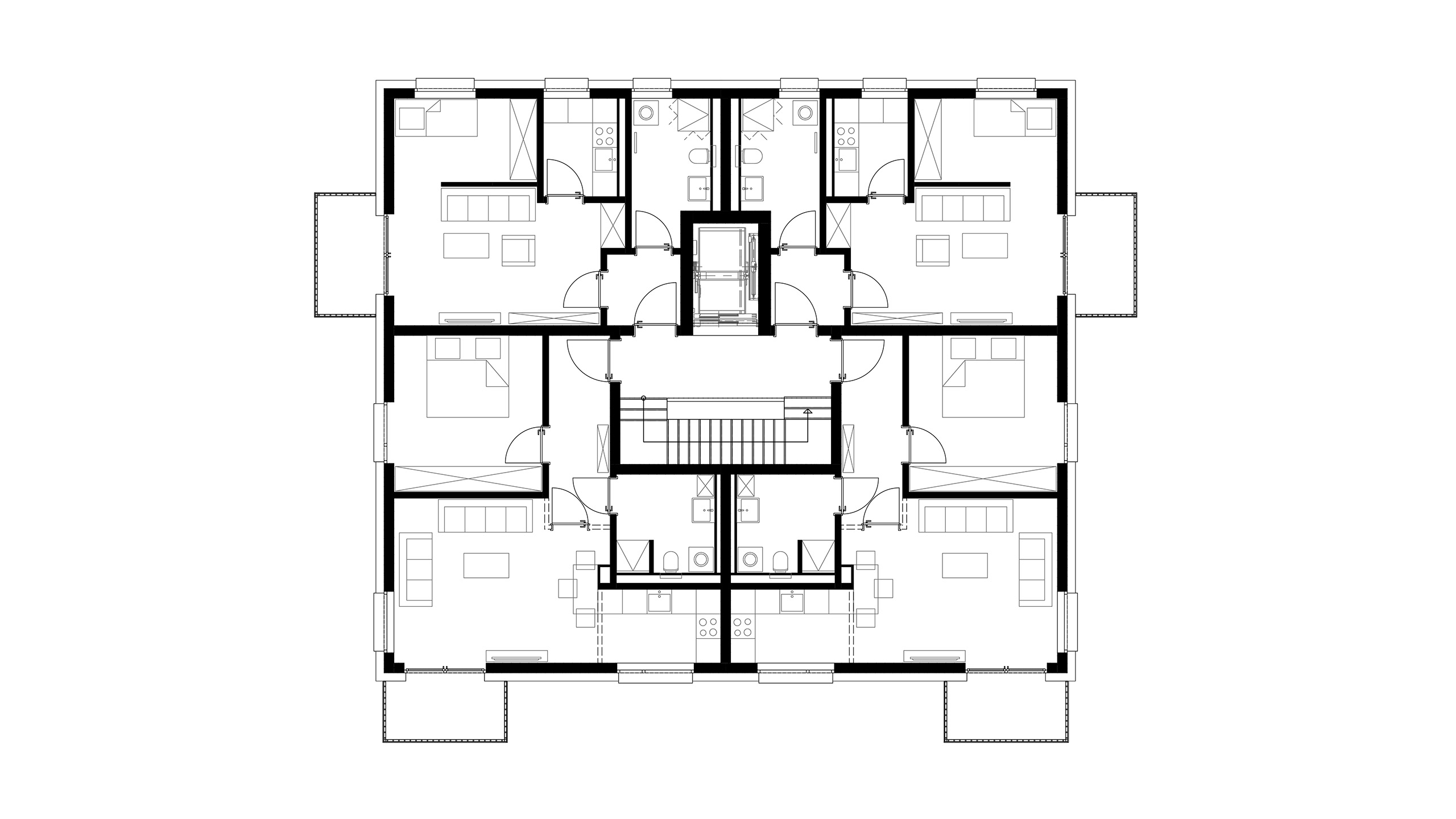
Anzahl Wohneinheiten: 20
Stellplätze: 20
Wohnfläche: 915m²
Geschosse: Keller, EG, 1OG, 2OG, 3OG, 4OG
Wohnungsgrößen: 10 x 1 Raum, 10 x 2 Raum
Aufzug: Kabinenmaß 2,10m x 1,10m
EnEV: EH KfW 55
Heizung: Luft-Wasserwärmepumpe + Gas-Brennwert + PV Module 2,6 kW/p
Dachform: Flachdach
Für die Ilsenburger Wohnungsbaugesellschaft haben wir ein Mehrfamilienhaus in Ilsenburg geplant. Das Grundstück befindet sich am südöstlichen Stadtrand in einer leichten Hanglage am Waldrand. Nach Vorgaben des Bauherren, haben wir ein unterkellertes Mehrfamilienhaus mit 20 Wohneinheiten verteilt auf 5 Vollgeschossen geplant. Die kompakt geschnittenen 1 und 2 Raumwohnungen werden über ein innenliegendes Treppenhaus und einen Aufzug erschlossen. Bei dem Energiekonzept, haben wir uns für einen Energiemix aus Gasbrennwert – Luft-Wasserwärmepumpe und einer 2,6kW/p PV-Anlage entschieden. Der geplante Energiestandard entspricht einem Effizienzhaus KfW 55. Die Mengen für die Kostenberechnungen haben wir aus dem 3D Gebäudemodell (BIM-Modell) gezogen und in einer Gewerkeschätzung verarbeitet. Bei dieser Variante ist die Darstellung der Kostengruppe nach DIN 276 (2018) und nach Gewerken möglich. Die Gewerkeschätzung ist eine sehr genaue Variante der Kostenberechnung, da die geplanten Mengen mit marktüblichen Einheitspreisen kalkuliert werden.








